一、機器的用途:
該機是利用高速回轉的葉輪,將彈丸拋向滾筒內連續翻轉的工件上,達到清理的目的。它適合用于各行業中的小型鑄件、鍛件、沖壓件、齒輪、彈簧等件的清砂、除銹、去除氧化皮和表面強化,特別適用于怕碰撞的零件的清理及強化。
(注:本機不能清理高溫件、帶有飛邊毛刺件,否則將損傷履帶。)
本機是綜合國內外技術,設計開發的新產品,是一種清理效果好、結構緊湊、噪聲小、成套性好的清理設備,具有以下特點:
1、該機采用了電機直牽式高效拋丸器,具有拋丸效率高,使用壽命長、結構簡單等特點;
2、采用風選型分離器,具有良好的分離效果和較高的生產率,提高了拋丸器葉片壽命;
3、采用袋式除塵器,粉塵排放濃度低于國家的標準,改善了工人的勞動環境;
4、采用耐磨橡膠履帶,減少了對工件的碰撞、損傷現象,降低了機器的噪聲;
5、工件清理完畢后,可自動卸料,降低了工人的勞動強度。
二、主要結構及工作原理:
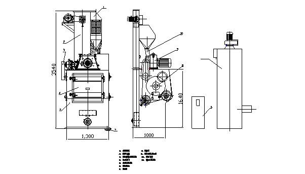
本機是一種小型的清理設備,主要由清理室、拋丸器總成、提升機、分離器、電氣系統等部分組成。見圖一(表一注明了各部分序號對應的名稱)
工作原理:在清理室中加入規定數量的工件,機器啟動后,工件被滾筒帶動,開始翻轉,同時拋丸器高速拋出的彈丸形成流丸束,均勻地打擊在工件表面上,從而達到清理、強化的目的。拋出的彈丸及砂粒經橡膠履帶上的小孔,流入提升機內,由提升機提升到分離器中進行分離。粉塵由風機吸送到除塵器中過濾,清潔空氣排入大氣中,布袋上的灰塵經機械振打落入除塵器底部的集塵箱中,用戶可定期清除,廢砂由廢料管流出,用戶可回用。丸砂混合物由回用管收回進入室體,待分離器分離后再回用,干凈的彈丸由電磁供丸閘門進入拋丸器拋打工件。
三、主要技術規格:
1、履帶端盤直徑--------------------------φ650mm
2、履帶端盤轉速--------------------------3.6r/min
3、被清理工件最大單件重量-----------10kg
4、滾筒最大載重量(易翻滾件)-----200kg
5、生產率-----------------------------------600~1200kg/h(灰鑄件)
6、拋丸器:
轉速---------------------------2930r/min
葉輪直徑---------------------φ340mm
拋丸量------------------------120kg/min
拋丸器功率------------------7.5kW
7、除塵器風量----------------------------2200m3/h
8、總裝機容量----------------------------12.67kW
9、機器外形尺寸(L×W×H)------1500mm×1880mm×3940mm
(注:其中生產率與工件的復雜程度和表面積有關,一般每分鐘清理零件表面積≤0.25m2)
(彈丸直徑0.8-1.2mm)

表一:
序號 | 名 稱 | 序號 | 名 稱 | 序號 | 名 稱 |
1 | 分離器 | 6 | 清理室 | 11 | 除塵系統 |
2 | 提升機 | 7 | 地基 | ||
3 | 履帶傳動系統 | 8 | 端 盤 | ||
4 | 加料門 | 9 | 拋丸器總成 | ||
5 | 電器系統 | 10 | 閘門管 |
四、機器的安裝及調整
(一)、機器的安裝:
1、基礎施工按基礎圖所示,用戶根據當地土質配置混凝土,用水平儀檢查平面縱橫水平后,即可進行安裝,并將各地腳螺栓緊固;

2、本機出廠前已將清理室、拋丸器等部分組裝成一體,整機安裝時按圖一所示,將序號2提升機與清理室上的提升機用螺栓緊固。斗式提升機安裝時,應注意調整上端主動皮帶輪軸承座,使之保持水平,以免皮帶跑偏。然后將序號1分離器與提升機上部用螺栓緊固;
3、將供丸閘(序號10)安裝在分離器上,按除塵系統圖連接所有的管路,分離后的廢料用戶可自備廢料桶處理;
4、分離器的安裝圖見圖三。分離器正常工作時,彈丸流幕不應有 缺口,如果不能形成滿幕簾,應調整序號1重錘直至形成滿幕
簾。如果丸砂分離效果不好,可調整分離級板(序號2、序號3),以得到良好的分離效果,彈丸過篩后的大塊物料,應定期清除;

5、提升機皮帶由用戶配孔聯接,聯接形式如上圖:
(二)、空運轉調試
1、試驗運轉前必須先熟悉使用說明書中的有關規定,對該設備的
2、結構、性能做全面的了解;
3、開機前必須先檢查各緊固件是否有松動現象,及機器的潤滑情況是否合乎要求;
4、該機要求裝配正確,開機前應對各部件、電機等進行單動試驗。各電機旋向應正確,履帶、提升機皮帶應松緊適中,無跑偏現象;
5、應檢查各電機的空載電流、軸承溫升、減速器、拋丸器是否動轉正常,發現問題應及時查明原因,進行調整;
6、單動設備沒有問題后,可依次啟動除塵器、提升機、滾筒正轉、拋丸器進行空運轉試驗,空運轉時間為一小時。
五、機器的操作及注意事項
(一)、機器的操作:
1、 凡是本機操作人員必須對本說明書以及本機的工作原理性能及操作方法、潤滑等方面有全面的了解,方能進行操作。
2、將彈丸(250kg)陸續加入滾筒內,然后放入工件,關閉加料門,準備開車。
3、 合上總電源開關,將鑰匙開關旋至通的位置,接通電源。
4、 按“風機開”按鈕,風機開。
5、 按“提升機開”按鈕,提升機開。
6、 按“拋丸器開”按鈕,拋丸器開。
7、 按“供丸閘開”按鈕,供丸閘開,清理開始。
8、 按“滾筒正轉”按鈕,滾筒正轉開始。
9、 清理時間到,拋丸器、供丸閘自動關閉。
10、 按“供丸閘停”按鈕,供丸閘停。
11、按“拋丸器停”按鈕,拋丸器停。
12、按“滾筒停”按鈕,滾筒停。
13、按“提升機停”按鈕,提升機停。
14、按“風機停”按鈕,風機停。
15、按“振打開”按鈕,振打開始,振打時間到,按“振打停”停止。
16、打開加料門,按“滾筒反轉”按鈕,滾筒反轉開始,物料即可自動卸出。
17、按“滾筒停”按鈕,滾筒反轉停。
18、在通風除塵系統中,裝有蝶閥,根據情況調整蝶閥,可得到良好的分離效果;
19、拋丸器定向套的調整:
定向套的調整可參考圖四所示的示意圖調整,在使用過程中因定向套磨損使彈丸擴散角增大,導致拋丸器和清理室的其他護板磨損加快。因此,定向套的磨損超過10毫米時,應更換新的定向套(開口方向與水平方線夾角為45°)。

定向套調整示意圖
(二)、注意事項:
1、應定期清除除塵器下方集塵箱中的粉塵,以防阻塞排塵管,影響除塵效果;
2、應經常清理清理室底部以及分離器漏斗中篩網下的雜物;
3、應經常清掃設備周圍的彈丸,以防滑倒傷人;
4、應經常檢查清理室中履帶及提升機皮帶有無跑偏現象,以免損傷皮帶;
5、禁止在拋丸器沒完全停止時打開加料門,以防出現事故。
六、機器的維護及保養
1、每一工作班后,均應將機器清掃一遍;
2、應經常檢查清理室中的護板及拋丸器中定向套、分丸輪等耐磨件的磨損情況,磨損嚴重時應立即更換;
3、應按規定定期潤滑,并經常檢查機器是否動轉靈活。設備潤滑點見表二;
4、定期檢查各傳動部分,清洗零件,更換磨損的零部件;
5、機器在檢查維修時,必須切斷電源,避免事故的發生;
6、清理室的耐磨鑄鐵護板可根據磨損情況定期更換。更換護板時,應把護板間的安裝間隙控制在1.5毫米以內。
表二:
序號 | 潤滑部位 | 潤滑位數 | 潤滑方法 | 潤滑期限 | 潤滑油種類 |
1 | 提升機上部軸承 | 2 | 人工 | 每月一次 | 2#鋰基潤滑脂 |
2 | 除塵器電機 | 2 | 人工 | 按電機潤滑要求潤滑 | |
3 | 提升機鏈輪 | 2 | 人工 | 每周一次 | 40#機械油 |
4 | 提升機減速器 | 1 | 人工 | 三個月一次 | 40#機械油 |
5 | 除塵器軸承 | 10 | 人工 | 每月一次 | 2#鈣基潤滑脂 |
6 | 減速器 | 1 | 人工 | 三個月一次 | 40#機械油 |
7 | 傳動鏈輪 | 2 | 人工 | 每周一次 | 40#機械油 |
8 | 端盤軸承 | 4 | 人工 | 每月一次 | 2#鈣基潤滑脂 |
9 | 支撐輥軸承 | 2 | 人工 | 每月一次 | 2#鋰基潤滑脂 |
10 | 漲緊輥軸承 | 2 | 人工 | 每月一次 | 2#鋰基潤滑脂 |
11 | 提升機下部軸承 | 2 | 人工 | 每月一次 | 2#鋰基潤滑脂 |
12 | 主動輥軸承 | 2 | 人工 | 每月一次 | 2#鋰基潤滑脂 |
注:提升機上部拋丸器履帶傳動系統的電機按電機潤滑要求潤滑。
七、軸承明細表
序號 | 名 稱 | 代 號 | 數 量 | 安 裝 部 位 |
1 | 帶座外球面球軸承 | UCF207 | 6 | 清理室傳動軸 |
2 | 帶座外球面球軸承 | UCF307 | 4 | 提升機、螺旋輸送器 |
3 | 雙列向心球面球軸承 | 1210 | 4 | 清理室端盤 |
4 | 帶座頂絲外球面球軸承 | UCFL204 | 4 | 除塵器 |
5 | 帶座頂外球面球軸承 | UCPH205 | 2 | 除塵器 |
6 | 深溝球軸承 | 6008 | 1 | 除塵器 |
八、易損件及隨機備件明細表
易損件明細表:
序號 | 圖 號 | 名 稱 | 材 料 | 數量 |
1 | Q326GT-005 | 葉 片 | 耐磨鑄鐵 | 8 |
2 | Q034ZZ6-3 | 分丸輪 | 耐磨鑄鐵 | 1 |
3 | Q034ZZ6-4 | 定向套 | 耐磨鑄鐵 | 1 |
4 | Q034ZZ6-2 | 端護板 | 耐磨鑄鐵 | 2 |
5 | Q034ZZ6-7 | 頂護板 | 耐磨鑄鐵 | 1 |
6 | Q034ZZ6-8 | 側護板 | 耐磨鑄鐵 | 2 |
清理室內各護板亦為易損件。
隨機備件明細表:
序號 | 圖 號 | 名 稱 | 材 料 | 數量 |
1 | Q326GT-005 | 葉 片 | 耐磨鑄鐵 | 8 |
2 | Q034ZZ6-3 | 分丸輪 | 耐磨鑄鐵 | 1 |
3 | Q034ZZ6-4 | 定向套 | 耐磨鑄鐵 | 1 |
九、常見故障原因及排除方法
故 障 | 產 生 原 因 | 排 除 方 法 |
清理效果差,清理時間長 | 1、 定向套窗口位置不對; 2、 拋丸器內護板、定向套、分丸輪、葉片磨損嚴重; 3、 使用彈丸過小; 4、 彈丸流量過小; 5、 清理室履帶松馳。 | 1、 按說明書要求調整定向套開口位置; 2、 仔細檢查各件,若磨損嚴重應立即更換; 3、 選擇合適彈丸; 4、 調節電磁閘門,增大彈丸流量,若循環彈丸不足,應重新加入新彈丸; 5、 調整清理室兩邊的漲緊裝置,使之漲緊。 |
提升機皮帶打滑,發生較大磨擦、磕碰聲音 | 1、 皮帶松馳; 2、 提升機下部物料阻塞; 3、 提升機皮帶跑偏。 | 1、 調節提升機上部的調整螺栓,使皮帶漲緊; 2、 打開提升機下部的維修門,人工清除堆集物料,并嚴格按說明書要求順序開、關機; 3、 打開提升機上部的維修蓋,觀察皮帶跑偏方向,調整提升機上部的漲緊裝置,邊調整邊單動試車。 |
分離器分離效果差 | 1、 流幕不均; 2、 分離區風速不合適; 3、 分離器一級、二級撇濾板的調節位置不合適。 | 1、 調節分離器內兩重錘位置,達到滿流幕; 2、 調整除塵系統中進入分離器的蝶閥使分離區風速達到4~5m/s。 3、 調整一級、二級撇濾板的位置。 |
拋丸器電機發熱 | 1、 拋丸量過大; 2、 電機本身有問題。 | 1、 根據電流顯示(負載電流不能超過15A)調整供丸閘門,使拋丸量降低; 2、 檢查線路及電機參數。 |
拋丸器振動、噪聲大 | 1、 平衡性差; 2、 由于大塊物料進入拋丸器使葉片斷裂破壞; 3、 相對一組葉片磨損不勻,引起重量差較大。 | 相對一組葉片的重量差不得大于5克,更換時應成對更換。 |
室體灰塵外溢 | 1、 密封不良; 2、 吸塵風量過小。 | 1、 檢查除塵管道及室體是否密封良好,并使之密封; 2、 ⑴清除布袋除塵器上的灰塵; ⑵調整除塵系統進入清理室的蝶閥,增大清理室的風量。 |






魯公網安備 37021102001171號